Galerie
Fertiges Projekt
Galerie
Visualisierung
Galerie
Firstfeier
Galerie
Spatenstich
Informationen zum Projekt
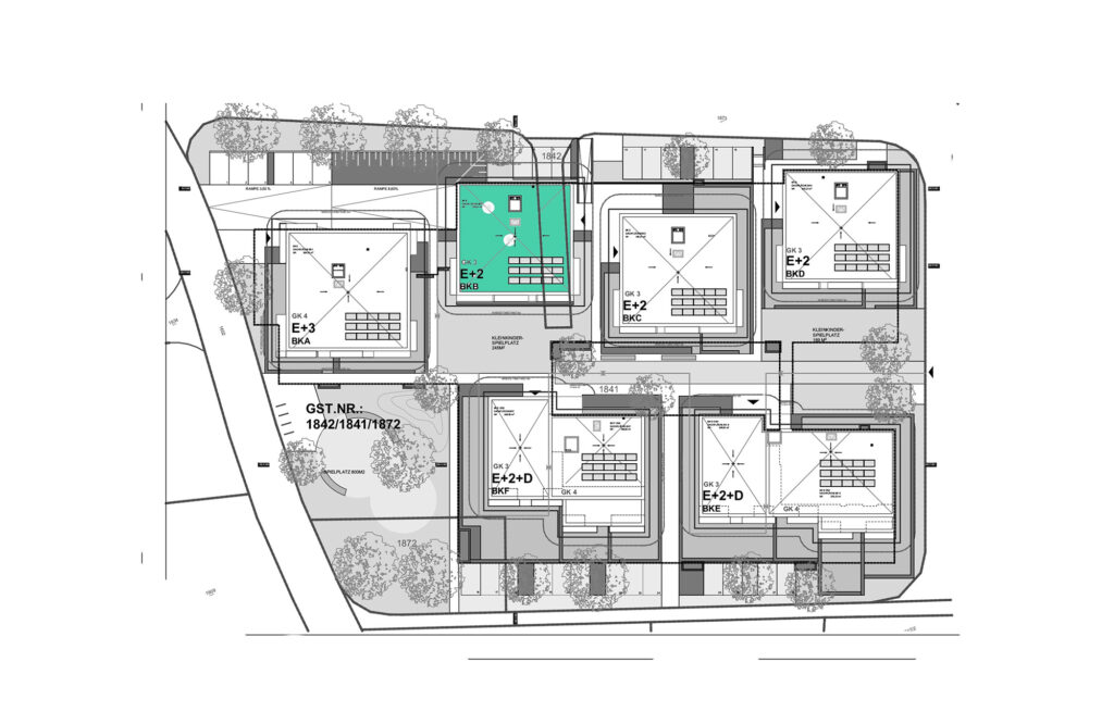
16 Wohnungen
16 Mietwohnungen
21 Parkplätze
18 Tiefgaragenparkplätze
3 Parkplätze (im Freien)
Baustart: Mai 2017
Fertigstellung: Dezember 2018
- 16 Wohnungen
- 21 Parkplätze
- Baustart: Mai 2017
- Fertigstellung: Dezember 2018
Bei der Wohnanlage handelt es sich um ein unterkellertes Gebäude mit Erdgeschoß und 2 Obergeschoßen. Jede der Wohnungen verfügt über einen Balkon und im Untergeschoß über ein Kellerabteil.
Energiekennzahl: 28 kWh/m²a bzw. 29 kWh/m²a
Der Heizwärmebedarf beträgt 28kWh/m²a. (Haus A) bzw. 29 kWh/m²a (Haus B und C)
Der Gesamtenergieeffizienz-Faktor für dieses Projekt entspricht der Effizienzklasse A+ bzw. A++.
Ausstattung
Eigener Keller
Massivbau
Gasheizung
Kinderspielplatz
Abfallsammlung
Fahrradraum
Sonnenschutz
Fußbodenheizung
Allgemeine Grünflächen
Dokumente / Unterlagen
Das Projekt wurde bereits übergeben. Gerne können Sie uns kontaktieren, wenn Sie Interesse an weiteren Informationen/Unterlagen haben.
Das Bauvorhaben wurde nach den Richtlinien des Landes Vorarlberg gefördert.
Beteiligte Projektpartner
| Funktion | Partner |
|---|---|
| Bauherr | Alpenländische Gemeinnützige WohnbauGmbH |
| Generalunternehmer | PRISMA Zentrum für Standort- und Regionalentwicklung GmbH |
| Entwurfs- und Einreichplanung | Aicher Ziviltechniker GmbH |
| Polier- und Detailplanung | noch offen |
| Vermessung | noch offen |
| Statik | noch offen |
| Planung – Haustechnik | Marte Diem GmbH |
| Planung – Elektro | Ingenieurbüro Brugger GmbH |
| Entwässerung/Leitungsträger | breuß mähr - Ingenieurbüro für Kulturtechnik und Wasserwirtschaft |
| Energieausweis | DI Bernhard Weithas GmbH, Ingenieurbüro für Bauphysik |
| Bauphysik | DI Bernhard Weithas GmbH, Ingenieurbüro für Bauphysik |
| Geotechnik | noch offen |
| Bau KG | noch offen |
Ansprechpartner
Hausverwaltung
Christopher Stuefer



















