Galerie
Fertiges Projekt
Galerie
Visualisierung
Galerie
Baufortschritt
Informationen zum Projekt
- 6 Wohnungen
- 7 Parkplätze
- Baustart: März 2020
- Fertigstellung: April 2021
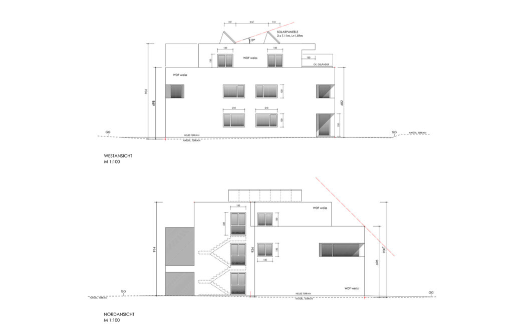
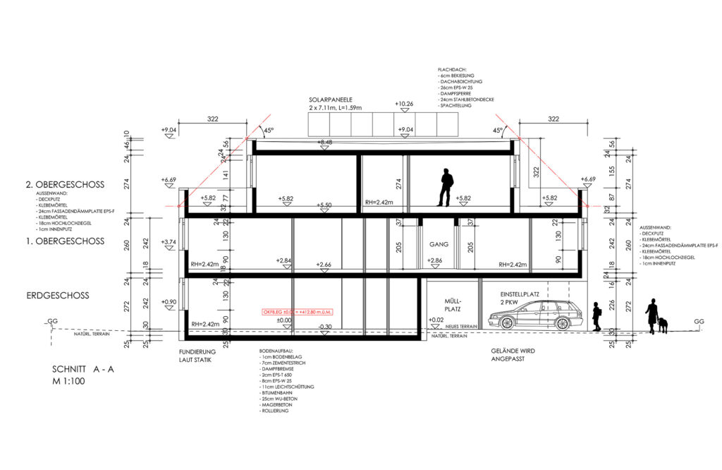
Bei der Wohnanlage handelt es sich um ein nicht unterkellertes Gebäude mit Erdgeschoss und 2 Obergeschossen. Die Wohnung Top 01 verfügt über eine in die Fassade integrierte Terrasse, die Wohnungen Top 02, 03 und 04 verfügen über einen in die Fassade integrierten Balkon. Die Wohnungen Top 05 und Top 06 verfügen über eine Dachterrasse. Allen Wohnungen ist im Erdgeschoss ein Kellerersatzraum zugeordnet.
Energiekennzahl: 28 kWh/m²a
Der Heizwärmebedarf beträgt 28 kWh/m²a.
Der Gesamtenergieeffizienz-Faktor für dieses Projekt entspricht der Effizienzklasse A+.
Ausstattung
Dokumente / Unterlagen
Das Projekt wurde bereits übergeben. Gerne können Sie uns kontaktieren, wenn Sie Interesse an weiteren Informationen/Unterlagen haben.
Das Bauvorhaben wurde nach den Richtlinien des Landes Vorarlberg gefördert.
Beteiligte Projektpartner
| Funktion | Partner |
|---|---|
| Bauherr | Alpenländische Gemeinnützige WohnbauGmbH |
| Generalunternehmer | Rhomberg Bau GmbH |
| Entwurfs- und Einreichplanung | Architekturbüro Dipl.Ing. Dieter Gross |
| Polier- und Detailplanung | noch offen |
| Vermessung | Rapatz Vermessung ZT GmbH |
| Statik | Mader | Flatz | Schett | ZT GmbH |
| Planung – Haustechnik | noch offen |
| Planung – Elektro | noch offen |
| Entwässerung/Leitungsträger | Rudhardt | Gasser | Pfefferkorn Ziviltechniker |
| Energieausweis | DI Bernhard Weithas GmbH, Ingenieurbüro für Bauphysik |
| Bauphysik | DI Bernhard Weithas GmbH, Ingenieurbüro für Bauphysik |
| Geotechnik | BGG Consult Dr. Peter Waibel ZT-GmbH |
| Bau KG | noch offen |





















